CONTACT
PT FR DE
CONTACT
WELCOME TO

Property A01





BASEMENT
100 m2

1. Storage · 50 m2
2. Storage · 18.4 m2
3. Storage · 1.9 m2
4. Storage · 2 m2
5. Laundry · 6.6 m2






BASEMENT
100 m2

1. Storage · 50 m2
2. Storage · 18.4 m2
3. Storage · 1.9 m2
4. Storage · 2 m2
5. Laundry · 6.6 m2
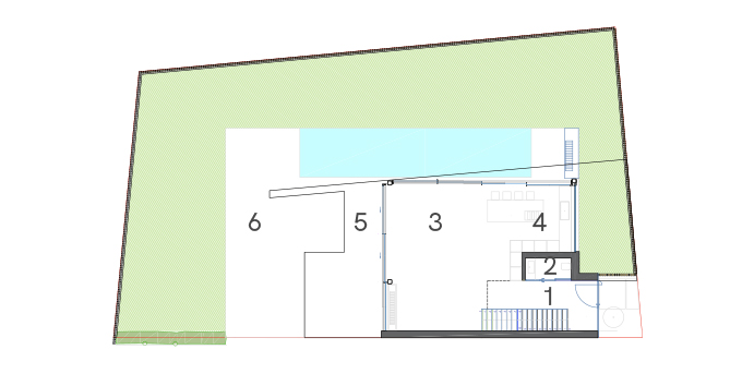
GROUND FLOOR
75.1 m2

1. Entrance Hall · 9.3 m2
2. Guest Toilet · 2.5 m2
3. Sitting Room · 32.5 m2
4. Kitchen · 16.7 m2
5. Terrace · 30.5 m2
6. Terrace · 32.5 m2






GROUND FLOOR
75.1 m2

1. Entrance Hall · 9.3 m2
2. Guest Toilet · 2.5 m2
3. Sitting Room · 32.5 m2
4. Kitchen · 16.7 m2
5. Terrace · 30.5 m2
6. Terrace · 32.5 m2
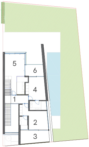
1ST FLOOR
94.9 m2

1. Landing · 6.4 m2
2. Bedroom 1 · 13.5 m2
3. Terrace · 6.9 m2
4. Bedroom 2 · 15.5 m2
5. Bedroom 3 · 18.1 m2
6. Terrace · 5.6 m2






1ST FLOOR
94.9 m2

1. Landing · 6.4 m2
2. Bedroom 1 · 13.5 m2
3. Terrace · 6.9 m2
4. Bedroom 2 · 15.5 m2
5. Bedroom 3 · 18.1 m2
6. Terrace · 5.6 m2
TERRACE
55 m2






TERRACE
55 m2




Property Features






About
Italian tiles from Emilgroup are used throughout all the properties, this is one of the leading
companies in the ceramic surfaces industry,making tiles since 1961. They provide
architectural solutions that meet the needs of contemporary living. Floor and wall coverings
with elegant, refined, trendy design enable everyone to decorate their living spaces in their
own style.

Benefits
Resistance to stains (graffiti) and chemicals (acid rain).
Excellent mechanical strength (bending/wind load)
Surface hardness (scratch-resistant)
Frost and thermal shock resistance
UV colour-fastness
Fire resistance and reaction


www.emilgroup.it/en


Materials Supplied by Megabox

www.megabox.pt/en





About
Holland Aqua Sight, based in the Netherlands, is a company expert in all types of underwater windows. Only using PLEXIGLAS® that is considered one of the world‘s most precious and versatile plastics. This solution is present on a lot of every day object, such as aircraft construction and aircraft cabin windows to monitors and displays, as structural glazing, in noise barriers or in advertising.

Benefits
Has half the weight of glass but is stronger Will not break or crack like glass Completely customizable in size and panel thickness depending on the requirements Easy to clean Doesn’t get condensation or humidity No yellowing or haziness, gives you a crystal-clear view like glass


www.hollandaquasight.com/en/



About
All the bathroom and shower fixtures are from Italian company Bongio founded in 1936 From its very onset, the company chooses to pursue a path of innovation, quality and design that have formed its creative DNA, combining functionality, style, technology and a handcrafted care for details.

Benefits
10-year guarantee, all products and carefully Made from the finest Italian materials, including certified low-lead brass, top-grade fine porcelain, Murano glass and 316-stainless steel More lifespan, luminosity, durability, resistance and high performance regardless of climate or geographic location due to special fabricating and finishing techniques


www.bongio.com/en/


Materials Supplied by Megabox

www.megabox.pt/en





About
Villeroy & Boch ceramics are used in all bathrooms. The company has been recognized as producing innovative and stylish products to enhance people's lives, provide continuous inspiration and open up new horizons for truly personalised interior design.

Benefits
CeramicPlus surface to make care and cleaning easy TitanCeram material is used for more strength and resistance Double glaze to create a very robust and durable finish Water-saving & environmentally friendly toilets


www.villeroy-boch.co.uk


Materials Supplied by Megabox

www.megabox.pt/en





About
Silestone is a compound made up of 90% natural quartz, which make it extraordinarily hard and resilient. It is an excellent surface for kitchen worktops, bathrooms, floors and wall cladding using the minimum number of joints.

Benefits
Stain Resistant 25 years warranty Acid Resistant Impact Resistant Scratch Resistant


www.silestone.com


Materials Supplied by Megabox

www.megabox.pt/en





About
Solutions to make opening and closing furniture a mesmerising experience and deliver quality of motion and enhanced user convenience to the entire home. In particular to kitchens. The Blum product range is complemented by extensive support services.

Benefits
Smooth closing of drawers and doors Handle-less furniture Practical cabinet solutions


www.blum.com


Materials Supplied by Megabox

www.megabox.pt/en





About
BORA system products complement the product ranges to create a harmonious all-round system for recirculation and exhaust air solutions. The perfectly aligned components offer you optimum performance and a 100 % functional guarantee.

Benefits
Draw off odours and grease particles directly from the cookware Quieter and more effective than conventional hoods Easy cleaning High quality materials No head height extractor hoods


www.bora.com


Materials Supplied by Megabox

www.megabox.pt/en





About
Siemens is a global powerhouse focusing on the areas of electrification, automation and digitalization. One of the world’s largest producers of energy-efficient, resource-saving technologies, Siemens is a leading supplier of systems for power generation and transmission as well as medical diagnosis. In infrastructure and industry solutions the company plays a pioneering role.

Benefits
Efficient Engineering Innovative design & operation


www.siemens-home.bsh-group.com


Materials Supplied by Megabox

www.megabox.pt/en




The unique closed design features of the 14 linked units offer the opportunity to create a secure interior at ground level that can only be accessed by residents. An electric garage door will give access to the underground car park. The underground car park will have car spaces and an entrance door for each villa. Perimeter monitored CCTV will also add another layer of security - https://ibcsecurity.com/


Vasco Vieira is an Internationally acclaimed Architect having designed many award winning Villas in the Algarve. His design work can be seen in countries as far as London/Paris/Russia/Canada/USA (Miami) The association of luxury and quality associated with his designs are recognised all over the world - https://vascovieiraarquitectos.com/


The Interior Design at Fonte Algarve Residences has been taken care of by Quinta Style who offer design solutions for every part of the home, including: kitchens & bathrooms, outdoor living spaces, interiors and finishing’s, bespoke furniture, and decoration solutions - https://www.quintastyle.com/uk/





Enquire about this property